FREEDOM AND SILENCE自在·无声
暖融温度,盛放惬意,处处留存爱的印记。多境光语,舒叙安然,日日展演肆意自在。
大地色系流转于足履之间,随人的感知力蔓延至更高层级,靠近雅灰的不同形态,分区明显,和谐灵动。以中枢立柱为基点,一半交织会客场景与禅意空间,一半留白诗意与烟火气息,间隔有序,串联情态,跃动出家的温馨。
构筑地台与定制书柜,在错落起伏间,烘托书香气息,于宽窄结合中,展现设计意趣。
赋予空间叙事更强的光影美感,在体块合围下促成交互行为,增强一域多用的可能性,拓展自由感的视觉表达与空间呈现。将科学性与美学性融入电视背景墙,展露一重一轻、一简一繁的设计思想。
张弛有力,指明主次,以理性元素平衡侧邻场域的简约风格,借圆的象征意义糅合现代主义的情调,掀起对精致生活的无限期待。
利落转折,统一配色,相辅相成,巧妙削弱拥挤感,包容烹煮习惯,极致简约,便利实用。
根据空间尺度与电器造型,塑造集收纳、摆置、清洗、烘干、晾晒于一体的洗衣房,采用中性色维稳整体气质。
细腻纯白,勾勒着楼梯侧面的起伏美感,经由原木材质的衬托,散发出几分文艺格调,仿若羽毛的艺术吊灯,层层而下,渐进释光,透过纹理与造型,唱响了高雅的音乐剧,让单调的流转形态拥有了殿堂级的诗境。
比例的多与少,立面的凹与凸,纹理的疏与密,制造出气韵之美,精简而宁静。悬空台面,分虚实,叠光影,契合了灵活的栖居需求。窝在敦厚沙发里,午后的时光令人陶醉。
色块随面转换,色温携情变动,营造出素雅之风,以布置物品的序列,构筑和而不同的平静情态,随心安睡,满足苏醒,自洽独处,阅文思考,皆有秘境可达。
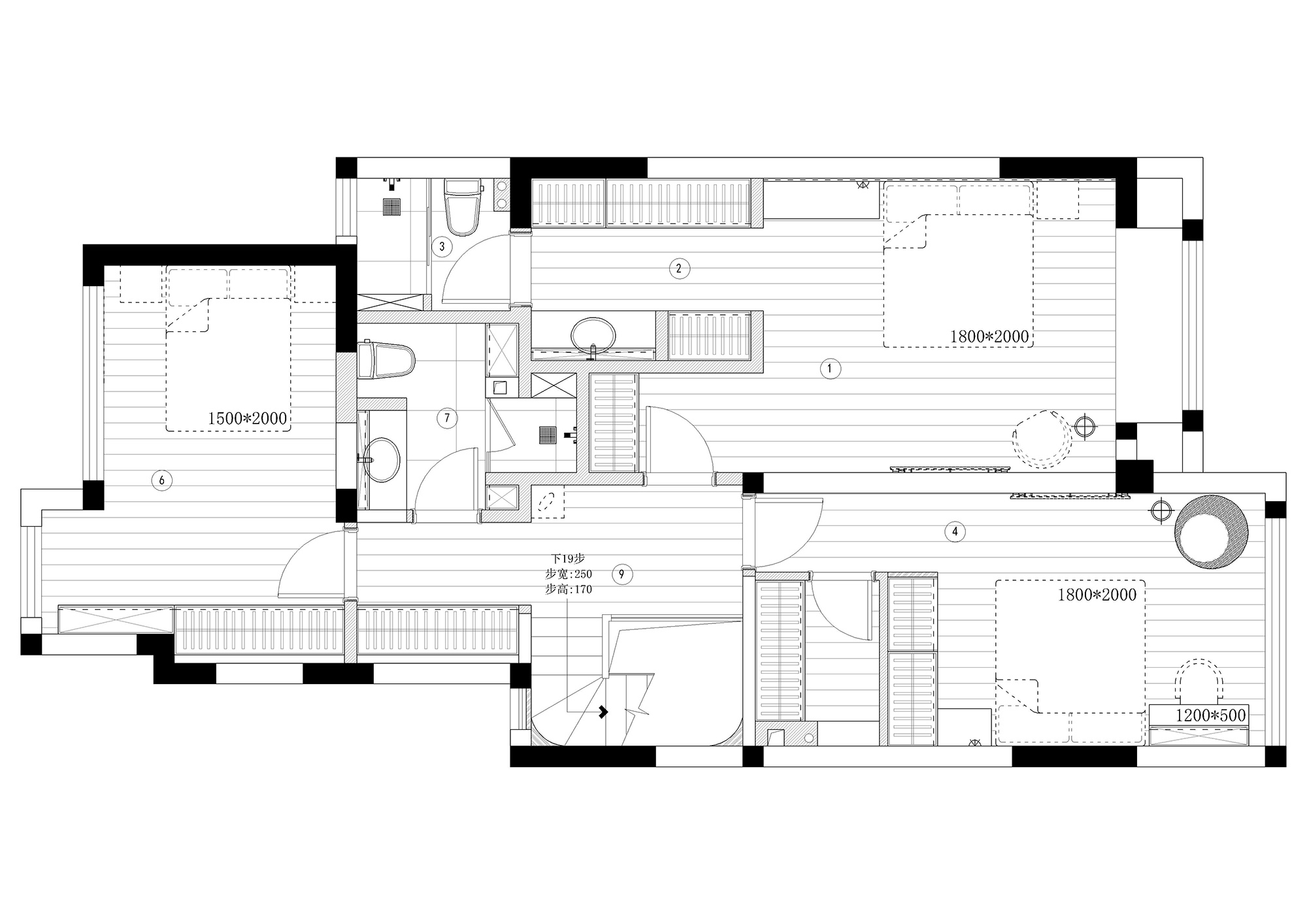
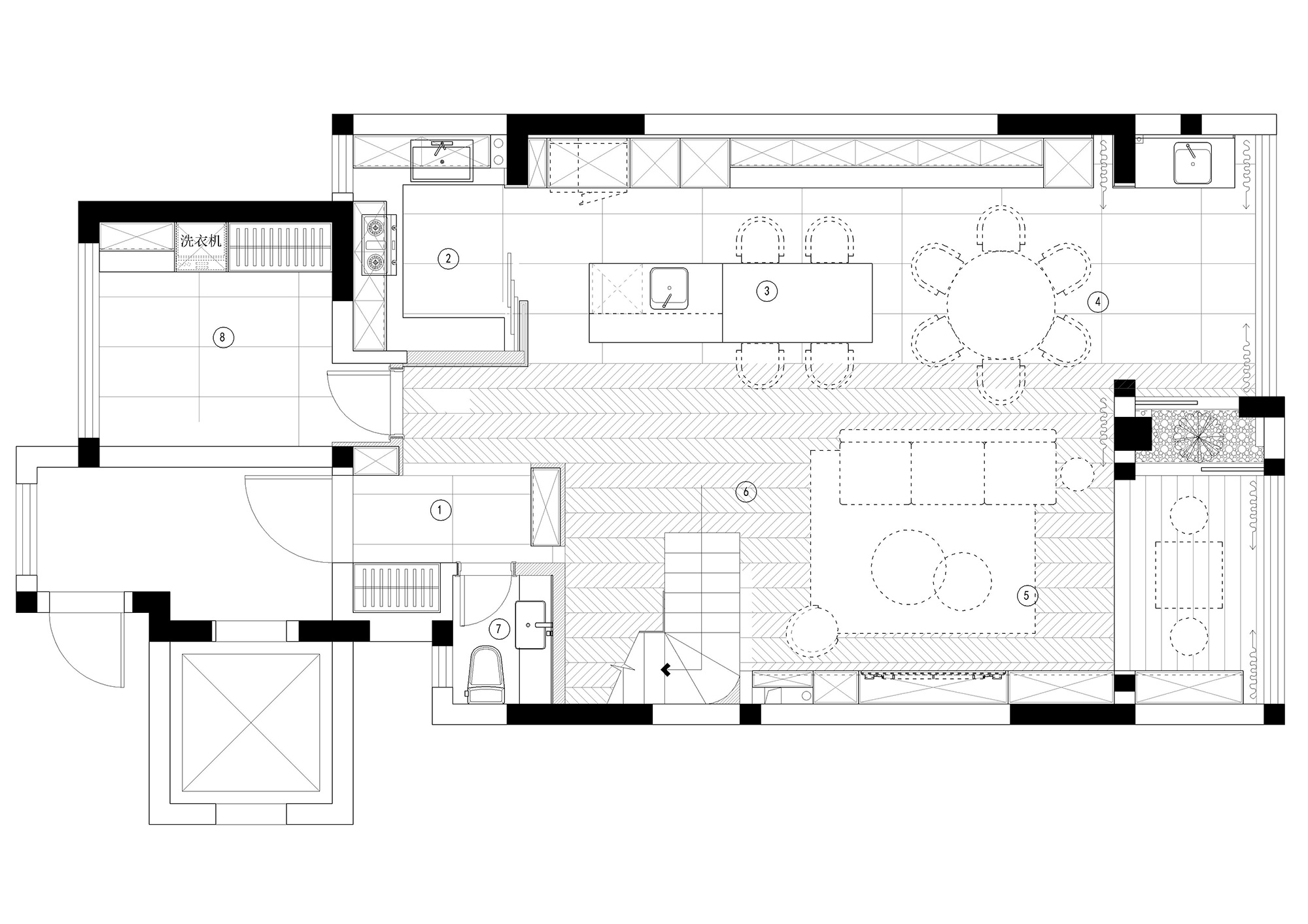
划分干湿区域,匠造进出动线,以门的开与合,补充了隐私需求,树立质感,细化结构,勾勒线条,表现功能性、实用性、美观性,令人享受放空时光的闲适氛围。平面图
项目名称 /《自在·无声》
项目地址 / 苏州常熟富春雅居
项目面积 / 170平方
设计主创 / 陈静
深化设计 / 任欢民、李永谦
设计时间 / 2021年10月
竣工时间 / 2022年9月
项目摄影 /TS建筑摄影
文案策划 / 修合文化
更多相关内容推荐



评论(0)