项目地址:雅居乐滨江国际
项目面积:138平方米
项目设计:吾索设计
摄影机构:EMMA 程得得
主要材料:钢板 清水混凝土漆 松木原木 KD木饰面板 水磨石克诺泰斯强化复合地板 软木地板 Tata木门 薄石材
设计师对空间功能的把握是基于客户提出实质性的需求,根据不同的家庭构成 生活需求进行设计的,通过细致的沟通与了解,才能让其更符合屋主的生活。设计师了解 吸收 整理 判断 归纳 思考,什么是更契合的设计。当这个过程摆在设计师自己的家的时候,设计师直面的将是最直接的需求,所以开始的时候设计师需要思考,什么才是真正需要的。
無 爲平面布局的重新规划是一个提出问题并不断思考去解决问题的过程
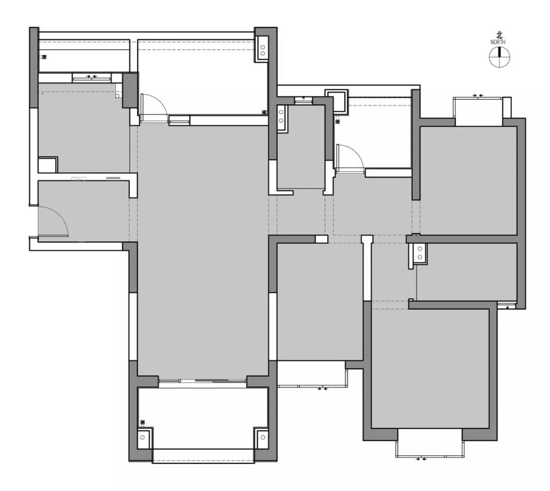
▲ 原始平面图
▲ 改造后平面图
每一个空间对于我们生活它真正是用来做什么的,思考每一平米要用来做什么而不是先入为主的设定了若干功能之后再把每个功能细化,一切设计的初衷应该回到最原始的目的,空间是为我们更好的服务。 首先 阳台被打通扩进客厅作为一个整体空间,利用地台高差的方式让阳台成为一个独立的茶室空间,他是距离阳光最近的地方,我想让阳光离我们的居室更近,席地而坐,一茶一书,虽身处高室,四季却清晰的触手可及。利用客餐厅的面积设计了一个大长桌,解决我们经常在家里使用电脑的需要,那为什么还需要一个书房呢?真正意义上的四分离卫浴设计,盥洗,如厕,淋浴,洗衣干衣完全是独立互不干扰的空间,那卫生么还需要另一个卫生间?也让主卫改造成的衣帽间成为可能,一台烘干机也让阳台升华成更能满足我需求的区域。
當 空
心通岂复问云何 印可聊须答如是
客厅没有电视,没有长沙发,没有茶几,一切不会每天都用到的家具都被我剔除,哪怕是用空来代替,我期许的是家具解决最实际的需求,如果不是每天都能有好几个人来填充,那三人位的沙发在我看来也是这个空间的冗余。电视柜取而代之的是一整块松木原木,放在两边的大理石地台上,既是空间自然元素的体现,也兼具了使用功能。
我将那些我们视作标配的家具取而代之的是 投影 钢板焊接的书柜 单人位沙发 于是 我在这个空间的活动行为已经被自然的限制为 看书 喝茶 偶尔能看大片
甚至连餐桌所配的椅子也是吝啬的只配了一家三口的数量
玻璃面的餐桌 也在有無的临界之间徘徊
离 合
形式只是对事物之间不同点的认识。从中取走一点,形式也就毁掉了。
居室从玄关开始,要解决的问题是我们回到家的第一件事情以及出门前的最后一件事情,换鞋,收纳,整理是每天都会发生的,简以用之,最大化的满足收纳
干区与洗衣机之间空出的距离自然的形成了一个尺度舒适的活动区域,在这里我们产生每天最频繁的生活行为,换洗的衣物能够很顺手的洗烘,整面的过道墙用一副装饰画让这里成为客餐厅另一个空间的延展。
独立的马桶间基本不会有很多水,材质上也只是将地面的水磨石上翻了一块砖的高度,利用壁挂马桶墙体的厚度自然的做成了一个柜子,让收纳清晰独立。
融 然
我们身处在其中, 却不知道自然从哪里终了,艺术从哪里开始。
这是林语堂的一段话,生活中除了柴米油盐,自然与艺术同样不可或缺,床头背景采用的是天然薄石材,每一片肌理都是自然与艺术最美好的结合,暗色调的整体风格以及红色窗帘的点缀都能体现出空间的质感。
没有更多的家具,剩下的只有基本的卧榻与光
童 谣
伴随孩子成长的空间更多的要考虑符合她小小使用的尺度,降低高度的开关,实木板制作的小挂衣架,圆角的家具
简单的配饰 不刻意去搭配 每一件都是她自己的物件 让一切顺其自然
烟 火
这烟火气不就是生活的一切么?
如 是
这便是生活该有的样子吧
后 记
这篇文字更多的是设计师在整个设计过程中的思考过程 因为是设计师自己的住所 对于每一项很细致的需求即明确 又会出现很多不确定性 因为总是希望把更多需求功能或是思想能够融入其中 于是这个过程更是一个艰难的取舍过程 设计师也希望通过这个过程能够使业主在自己的家居装修中能更切身的思考最本质的需求 有的放矢的来满足自身的喜好 让空间为我们服务


评论(0)