地址 / 杭州禹州·滨之江
类型 / 平层
面积 / 139m2
软装设计及产品 / 之和家居
风格定位 / 现代
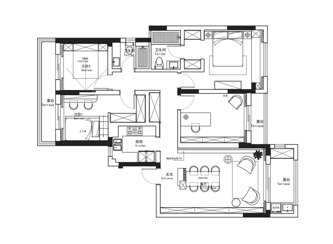
户型格局 / 三室一厅两卫
平面图
设计师说
房子是个容器,真正承载的是生活。我们的“极简”并非简单的断舍离,而是心无旁鹜地关注材料,将其特性无限纯化,整体保持了现代极简风格,同时最大程度释放空间体量,将空间利用最大化,融入功能,简而不减。
配色参考
高级灰+黄水仙+墨绿,富有感染力的色彩无需过多的修饰就能彰显态度。很多时候,深邃的墨绿色代表着力量,给予人舒适和温暖的感官体验,辅以木色和高级灰,将个性巧妙地融入其中。
客厅 Livingroom
客厅舍弃传统形式的围坐形式,以业主的生活习惯打造不同的生活方式。选择能取悦自己的,取舍之间,简单生活。在不改动原有墙面及地面的基础上,用木色、白色及墨绿色点亮空间,中和大理石带来的冷冽。木质、大理石、皮革、金属等不同的材质诠释生活美学。
色彩和质感达成了微妙的平衡,墨绿色带来丰富、多层次的亲密感。温润的木质餐桌上方黄铜色的餐灯则独领风骚。将玄关用木栅加以区分,丰富结构。对区域没有严格的划分,围绕生活而生活。
主卧 Bedroom
柔软有温度的空间,温馨但不复杂。这里有阳光的味道,也有生活的气息。墨绿色在卧室中延伸,营造出充满深情和情调的空间。竖条纹的背景墙让整个造型充满活力。
光与影随着时间拉长缩短变换身姿,谱写关于时光的五线谱。在床头柜及边柜的选择上,设计师选择了百搭大气的气质黑,以金属作为细节点缀。
儿童房 Children's room
两个宝贝的儿童房选择了利用率比较高且不占地的上下式儿童床,以白色为主基调。
次卧 Bed room
弹琴,弹吉他,消磨普通又不普通的平常。有客时就将收纳柜打开,隐形的折叠床藏在收纳柜里,一屋两用。
/ 屋主小采访 /
Q:买这个房子有什么故事?这是在全民找关系买号子的时期,唯一能买上的,且离滨江老房子比较近的楼盘
Q:对家的构想:简单
Q:在家里最喜欢的地方和消遣方式是什么?书房、弹琴、弹吉他
Q:你最庆幸这次装修做的哪些决定?没有做传统客厅
Q:装修过程中有什么开心或者感动的事情?逐渐用喜欢的装饰品填满空间的时候Q:请给即将装修的朋友一点小建议吧多跟设计师沟通,装修过程多参与
更多相关内容推荐



评论(0)