设计师:James Cleary Architecture
位置:美国 纽约
竣工:2012年
分类:住宅装修
内容:实景照片
材料介绍:锌 木材 混凝土
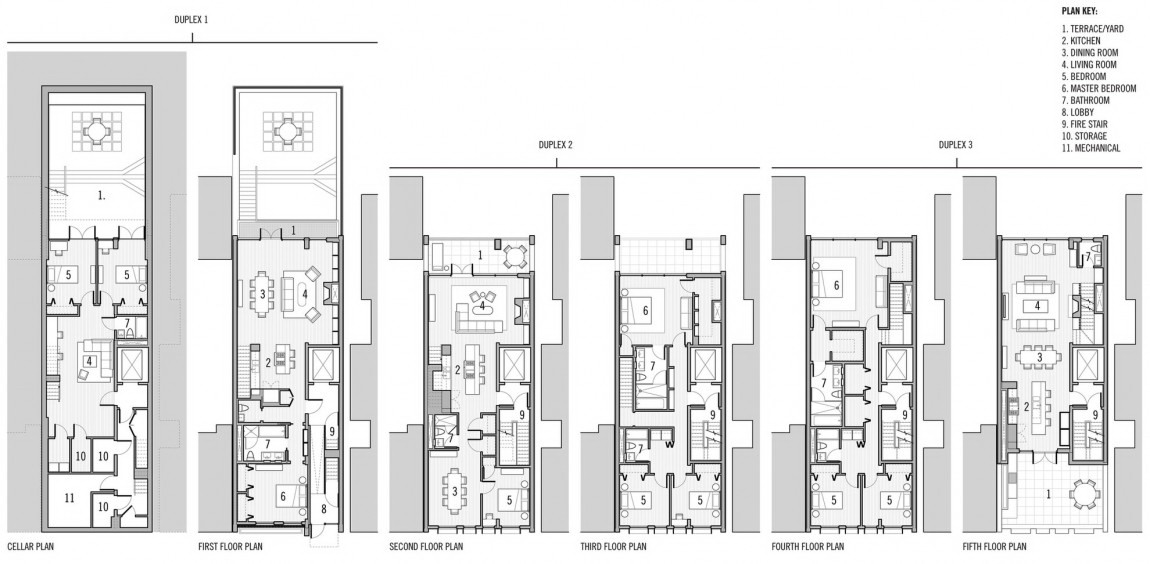
太平洋大街253号由James Cleary Architecture于2012年设计完成,位于美国纽约布鲁克林的Boerum山。赤褐色砂石和三个复式公寓很好地诠释了其作为布鲁克林当代建筑代表的特点。
建筑内外都巧妙地利用高低效果,从而营造出一种错落有致的美感。房间内部,混凝土天花板和墙壁、木地板、燃烧着木材的壁炉、私人户外空间以及大窗户等可以让阳光照射进房间。
厨房和楼梯被巧妙地设计在了一起。厨房油漆橱柜搭配粗糙发黑的钢,而由木材和混凝土建成的楼梯从地板一直延伸到天花板,当爸妈在做早餐时,孩子们可以坐在楼梯上玩耍。房间使用了大量的再生材料和设备,可以使其能耗降低35%。
赞
0


评论(0)