Australia Cubo Private Housing
位置:澳大利亚
分类:住宅装修
内容:实景照片
设计团队:PHOOEY Architects
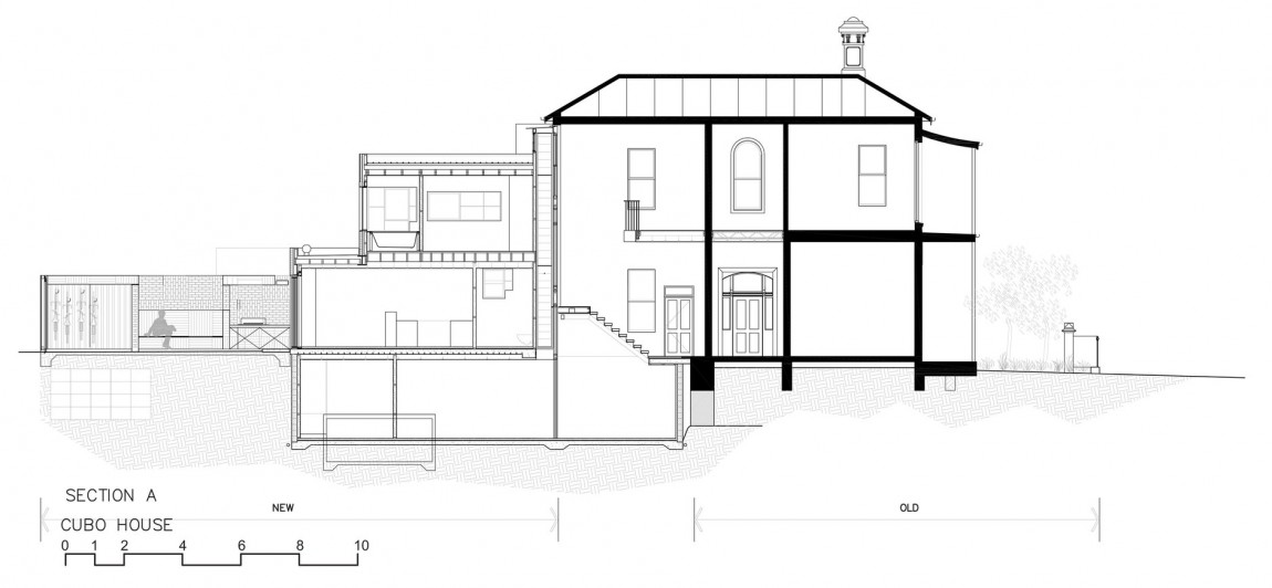
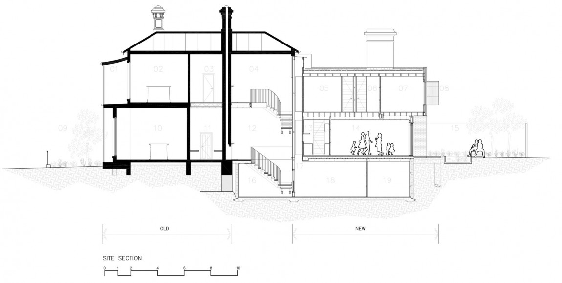
Cubo是一栋位于澳大利亚墨尔本的私人住宅,其具体位置是在维多利亚墨尔本郊区的北菲茨罗伊地区。这个面积4413平方英尺的居家场所,是由PHOOEY Architects设计团队打造的。
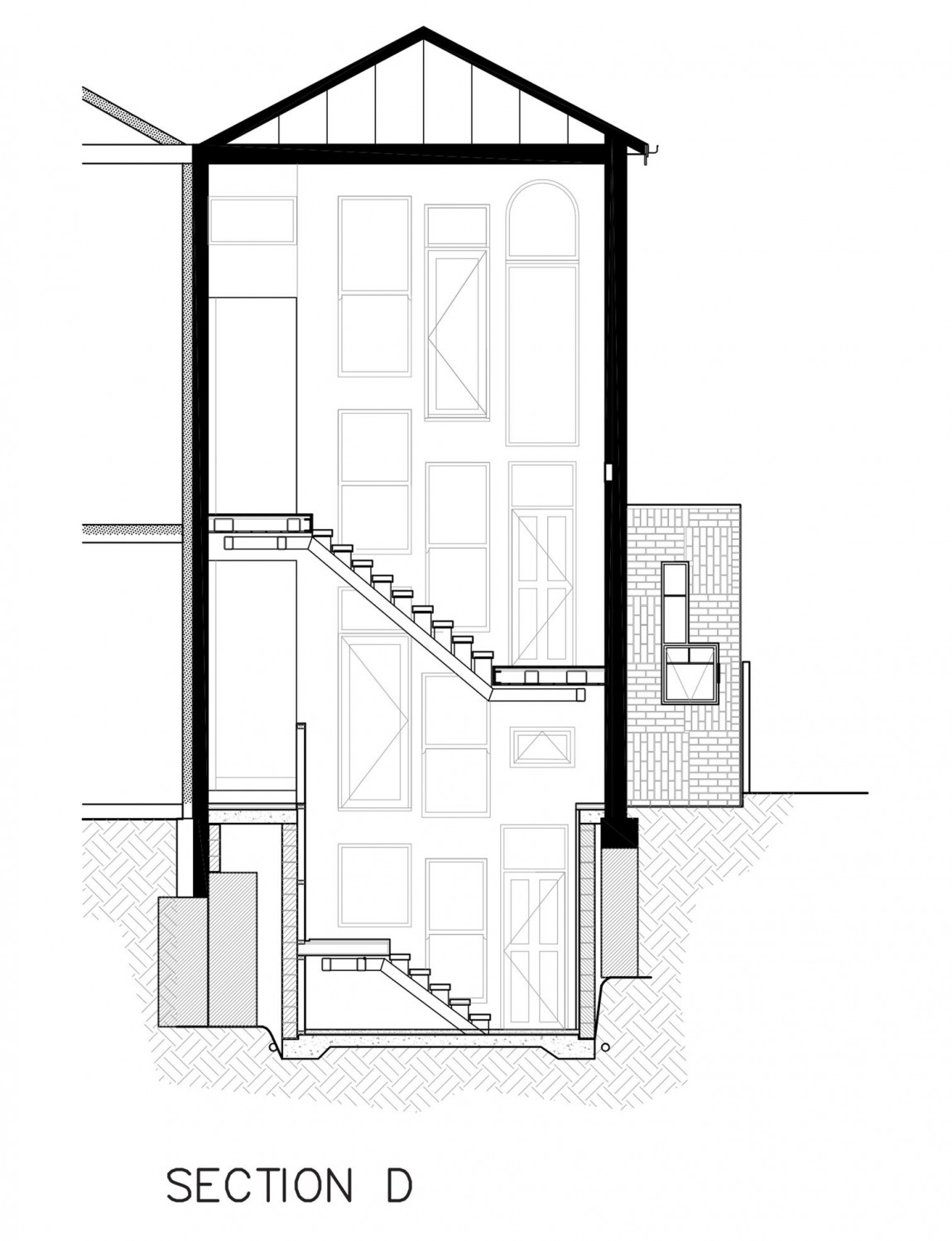
设计师们保留了许多原先遗留下来的建筑元素,比如木地板、门窗、防护栏和楼梯等。该项目在室内设计方面,采用了“旋转立方体”这一超现实的手法,将回收回来的二手材料按目录分类,有的重新使用有的二次开发利用。
从原先的建筑上拆下来的板岩屋顶,被用来做成了外立面,原来的防护板则被安装在后窗上,既可以遮阳又可以帮助主人保护隐私。重新定制的螺旋形楼梯,不仅隔出了一个大大的入口大厅,并且还将上下楼层联系在了一起。
除此之外,Cubo住宅还是一个节能节水工程,这里巧妙的使用了许多有利于环保的可持续装置。
赞
0


评论(0)