项目名称:西班牙J居住空间
工程内容:实景照片
位置:西班牙
设计公司:ZOOCO ESTUDIO
这个居住空间位于马德里的市中心,原是一个开放的阁楼式空间,建于二十世纪后期。其结构体系由承重墙、木柱和水平方向上的加泰罗尼亚拱顶系统共同组成。本项目希望在一个现有的居住空间中再建造一个小房子,也就是说,与其说这是一个室内设计和翻修项目,不如说它是一个独栋式住宅的设计项目。
这个金属结构的一部分直接落地,将荷载传递到地面,其余部分则悬挂在天花板上,而结构之间的空间则由木板或玻璃板进行填充,至于到底使用哪一种板材,则要取决于空间的功能。玻璃立面的设置原则也是如此。因此,这个体量可以满足各种不同的功能需求,甚至可以根据具体情况来调节空间的规模,以适应私密或公共需求。
不同高度的结构构件由楼梯或者短走廊联系在一起,不仅可以作为家具使用,还可以根据空间功能的不同来改变自身的用途。
上文说道,金属结构之间的空间会视情况由玻璃面板进行围合,更具体地讲,不同区域的私密性由不同透明度的玻璃来限定。因此,大部分玻璃面板都是透明的,但在某些特定的区域,根据私密性要求,建筑师会将透明的玻璃面板替换成半透明或不透明的玻璃面板。
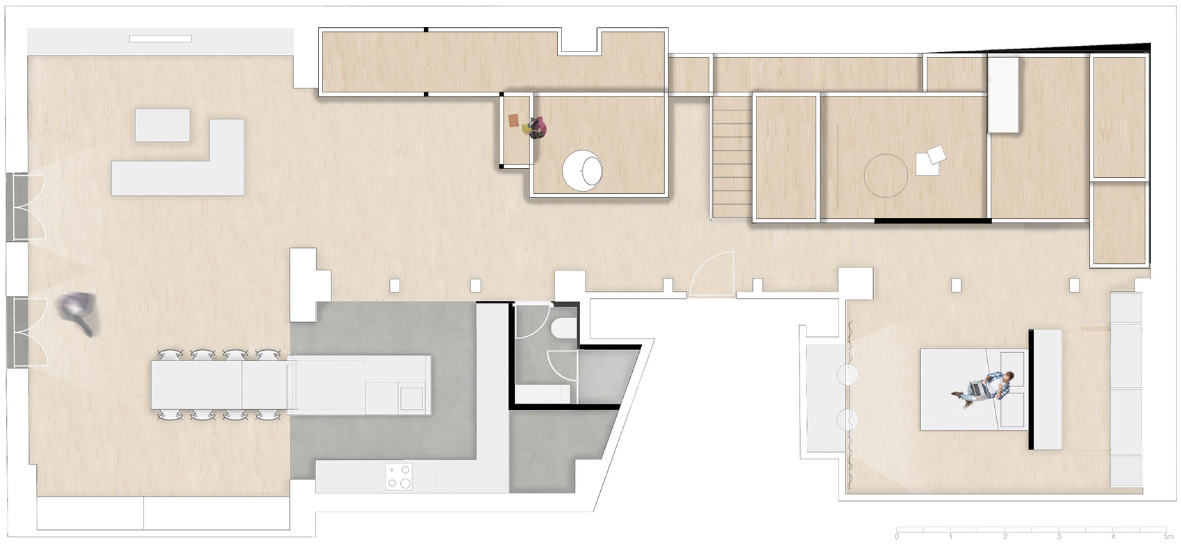
除了金属结构之外,这个居住空间内还有一间主卧,主卧与最大的浴室相连,同时,在必要的情况下,只需要在室内增加一扇与室高同高的门,便可以将主卧和浴室与其余居住空间隔开。厨房与餐厅和起居室相连,而在厨房的旁边,则设有一个办公区和一间客卫。
西班牙J居住空间轴测图
西班牙J居住空间平面图
西班牙J居住空间剖面图
赞
0



评论(0)