【建筑师】:张宇,刘军,张磊,孙頔
【地址】 小茶叶胡同16号,北京, 中国
【项目经理】刘军
【建筑面积】128.9 平方米
【项目年份】2017
【摄影师】刘军,张驰,北京清筑建筑设计有限公司
【技术支持】北京清华同衡规划设计研究院有限公司,刘军,刘智斌,孙晓彦,王鹏,舒涛
【结构设计】北京浩石集成房屋有限公司,高峰,郭宁
【室内设计】北京和能人居科技有限公司,王强,杨润滨
【主体结构】北京浩石集成房屋有限公司
【防水保温】 北京建中新材科技有限公司
【室内装配】北京和能人居科技有限公司
【污水设备】 威博朗
在胡同改造的大潮中,建筑师们从各种角度研究阐述着对胡同文化的理解,而对胡同改造如何实现产业化鲜有研究。2016年,建筑师们准备在旧改中尝试采用装配式实现产业化目标,一年以后,这一想法得到了实现,设计成果在2017年的北京国际设计周进行展示,获得了社会关注,居民认可。
研究装配式在旧改中的适用性,其目的是为改进现有旧改中的建造方式,减小旧城更新过程中的环保压力和各项成本,以期为存量规划的实施提供更多选择。
胡同院落在旧改中具有突出的复杂性,我们在北京白塔寺区域选择了几个极具代表性的平房院落,采用装配式对其进行改造升级,收获非常好的效果。
从提出装配式旧改到小茶叶胡同16号改造完成,始终是以设计研发为主导,这样保证了研发成果的落地。
组建建设团队由建筑师完成,共同将技术难点前置,在设计及加工环节解决,使得设计完成度得到有效保障。优秀的设计团队及技术顾问,保证了房屋的舒适性及实用性。
在施工过程中,结合胡同的限制条件,已总结出一套“餐包式”的装配方式,从而使得散落平房也可以采用产业化的思路进行改造升级。
经过小茶叶胡同16号的院落改造,我们坚定地认为,装配式进行旧房改造已具备一条完整的产业链条。希望通过我们的努力可以唤起更多企业参与到旧房改造产业化的实践中来
随着环保压力越来越大,市场对装配的诉求越来越高,特别是大型城市建材市场的不断外迁与人力成本的上升,材料与施工成本逐年增高,实现个性化与环保将会要付出更大的代价,而采用工厂生产、现场安装的装配式施工,其造价不但可以得到控制,在材料和施工上更加环保,工艺也更可控。
小茶叶胡同16号的改造具有多重意义,旧改项目中采用装配式,实际是定制的装配式,如此,为存量规划的落地提供了一种途径,也为旧城改造升级提供了全新思路。
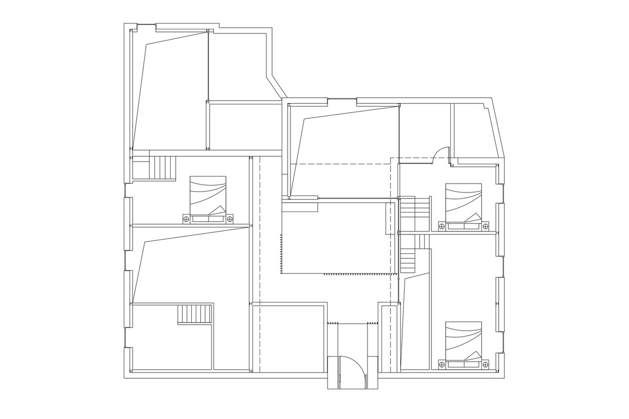
一层平面图
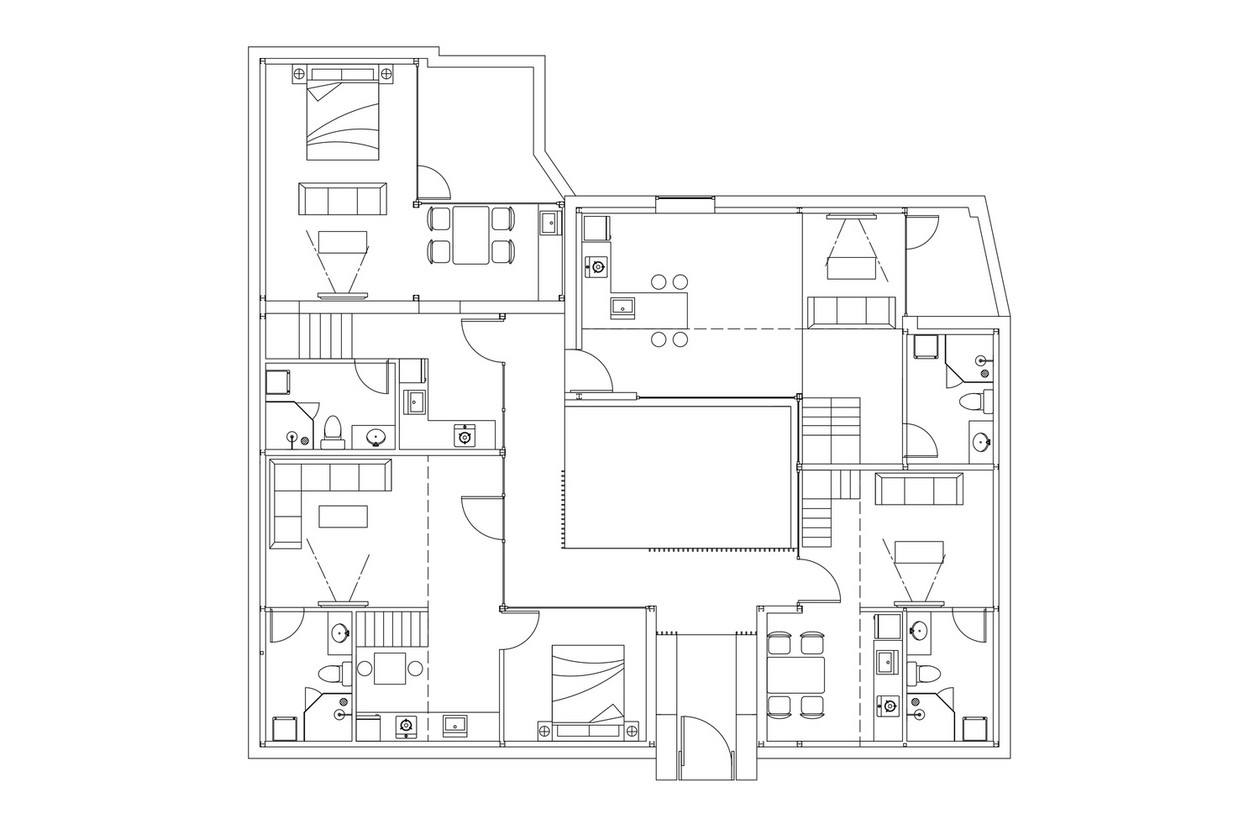
二层平面图


评论(0)